Top.Mail.Ru

проезд Донелайтиса, д. 36

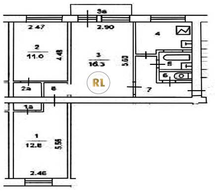
База каталог, Кол-во подъездов: 4, Отсутствует, I-511, Москва, Южное Тушино, Площадь парковки: 361, Пассажирский лифт: 0, От метро: 1420, Северо-Западный, да, Наименьшее кол-во этажей: 5, Наибольшее кол-во этажей: 5, Сходненская, Кол-во помещений: 80, Кол-во нежилых помещений: 0, Год ввода в эксплуатацию: 1963, 3-комн, Кол-во жилых помещений: 80, Не присвоен, дом 36, нет, да, да, да, да, нет, Имеется, Грузовых лифтов: 0, Год постройки: 1963, проезд Донелайтиса, 37.419143, 55.847558
Свяжитесь со мной на счет цены
10 дн.
T55S847558L37S419143T

На карте


Условия сделки

Источник


Старт продаж

Возможно заинтересует