Top.Mail.Ru

Митинская ул., д. 38, к. 1

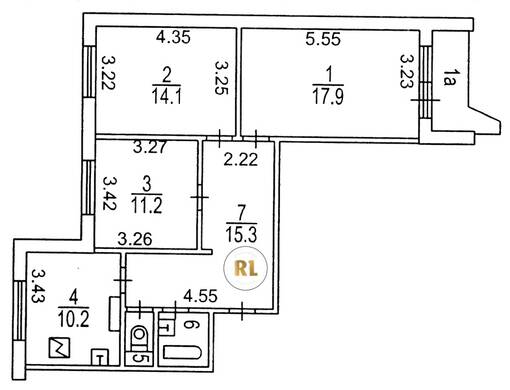
База каталог, Кол-во подъездов: 3, Отсутствует, П-44, Москва, Митино, Площадь парковки: 0, Пассажирский лифт: 3, От метро: 181, Северо-Западный, нет, Наименьшее кол-во этажей: 17, Наибольшее кол-во этажей: 17, Митино, Кол-во помещений: 198, Кол-во нежилых помещений: 6, Год ввода в эксплуатацию: 1991, 3-комн, Кол-во жилых помещений: 192, Не присвоен, дом 38, корпус 1, да, да, да, да, да, да, Отсутствует, Грузовых лифтов: 3, Год постройки: 1991, Митинская улица, 37.363376, 55.847578
Свяжитесь со мной на счет цены
10 дн.
T55S847578L37S363376T

На карте


Условия сделки

Источник


Старт продаж

Возможно заинтересует