Top.Mail.Ru

Аэродромная ул., д. 12, к. 1

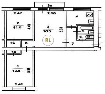
База каталог, Кол-во подъездов: 4, Имеется, I-511, Москва, Южное Тушино, Площадь парковки: 70, Пассажирский лифт: 0, От метро: 480, Северо-Западный, да, Наименьшее кол-во этажей: 5, Наибольшее кол-во этажей: 5, Сходненская, Кол-во помещений: 80, Кол-во нежилых помещений: 0, Год ввода в эксплуатацию: 1961, 3-комн, Кол-во жилых помещений: 80, Не присвоен, дом 12, корпус 1, да, да, да, да, да, да, Имеется, Грузовых лифтов: 0, Год постройки: 1961, Аэродромная улица, 37.433930, 55.847831
Свяжитесь со мной на счет цены
10 дн.
T55S847831L37S433930T

На карте


Условия сделки

Источник


Старт продаж

Возможно заинтересует