Top.Mail.Ru

Аэродромная ул., д. 14

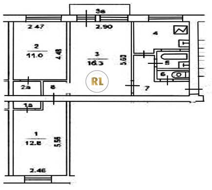
База каталог, Кол-во подъездов: 3, Отсутствует, I-511, Москва, Южное Тушино, Площадь парковки: 656, Пассажирский лифт: 0, От метро: 490, Северо-Западный, да, Наименьшее кол-во этажей: 5, Наибольшее кол-во этажей: 5, Сходненская, Кол-во помещений: 60, Кол-во нежилых помещений: 0, Год ввода в эксплуатацию: 1962, 3-комн, Кол-во жилых помещений: 60, Не присвоен, дом 14, да, да, да, да, да, да, Имеется, Грузовых лифтов: 0, Год постройки: 1962, Аэродромная улица, 37.433040, 55.848114
Свяжитесь со мной на счет цены
10 дн.
T55S848114L37S433040T

На карте


Условия сделки

Источник


Старт продаж

Возможно заинтересует