Top.Mail.Ru

улица Барышиха, д. 30

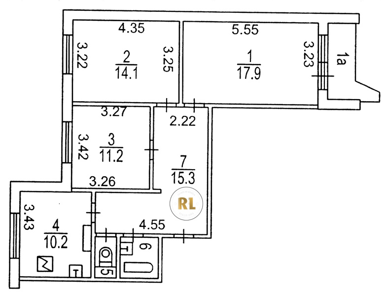
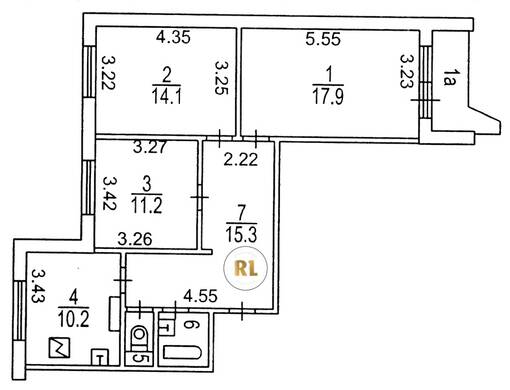
База каталог, Кол-во подъездов: 5, Имеется, П-44, Москва, Митино, Площадь парковки: 0, Пассажирский лифт: 5, От метро: 1030, Северо-Западный, нет, Наименьшее кол-во этажей: 14, Наибольшее кол-во этажей: 14, Митино, Кол-во помещений: 281, Кол-во нежилых помещений: 2, Год ввода в эксплуатацию: 1993, 3-комн, Кол-во жилых помещений: 279, Не присвоен, дом 30, нет, да, да, да, да, да, Имеется, Грузовых лифтов: 5, Год постройки: 1993, улица Барышиха, 37.345589, 55.848190
Свяжитесь со мной на счет цены
10 дн.
T55S848190L37S345589T

На карте


Условия сделки

Источник


Старт продаж

Возможно заинтересует