Top.Mail.Ru

Митинская ул., д. 44

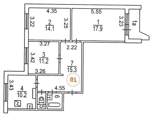
База каталог, Кол-во подъездов: 9, Имеется, П-44, Москва, Митино, Площадь парковки: 0, Пассажирский лифт: 9, От метро: 247, Северо-Западный, нет, Наименьшее кол-во этажей: 17, Наибольшее кол-во этажей: 17, Митино, Кол-во помещений: 596, Кол-во нежилых помещений: 10, Год ввода в эксплуатацию: 1992, 3-комн, Кол-во жилых помещений: 586, Не присвоен, дом 44, да, да, да, да, да, да, Имеется, Грузовых лифтов: 9, Год постройки: 1992, Митинская улица, 37.357717, 55.848357
Свяжитесь со мной на счет цены
10 дн.
T55S848357L37S357717T

На карте


Условия сделки

Источник


Старт продаж

Возможно заинтересует