Top.Mail.Ru

Пятницкое шоссе, д. 25, к. 1

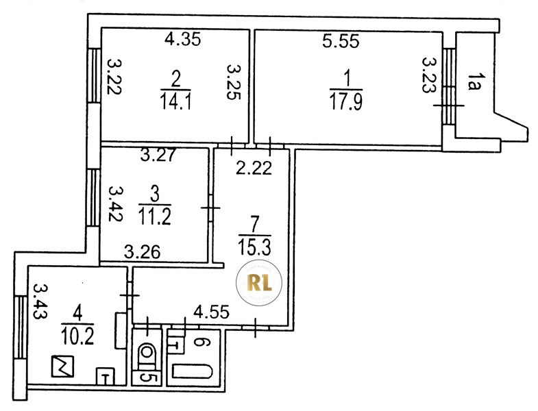
База каталог, Кол-во подъездов: 3, Отсутствует, П-44, Москва, Митино, Площадь парковки: 0, Пассажирский лифт: 3, От метро: 350, Северо-Западный, нет, Наименьшее кол-во этажей: 17, Наибольшее кол-во этажей: 17, Митино, Кол-во помещений: 208, Кол-во нежилых помещений: 5, Год ввода в эксплуатацию: 1991, 3-комн, Кол-во жилых помещений: 203, Не присвоен, дом 25, корпус 1, да, да, да, да, да, да, Имеется, Грузовых лифтов: 3, Год постройки: 1991, Пятницкое шоссе, 37.364966, 55.848357
Свяжитесь со мной на счет цены
10 дн.
T55S848357L37S364966T

На карте


Условия сделки

Источник


Старт продаж

Возможно заинтересует