Top.Mail.Ru

улица Свободы, д. 49, к. 1

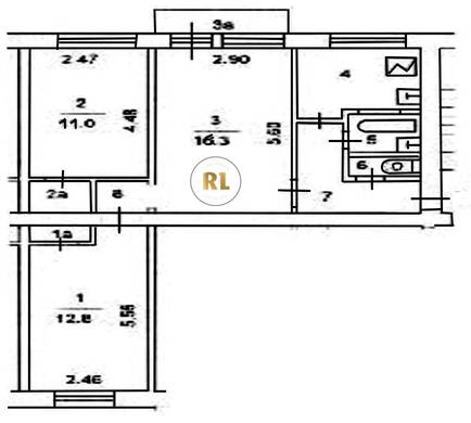
База каталог, Кол-во подъездов: 5, Отсутствует, I-511, Москва, Южное Тушино, Площадь парковки: 50, Пассажирский лифт: 0, От метро: 890, Северо-Западный, да, Наименьшее кол-во этажей: 5, Наибольшее кол-во этажей: 5, Сходненская, Кол-во помещений: 100, Кол-во нежилых помещений: 0, Год ввода в эксплуатацию: 1959, 3-комн, Кол-во жилых помещений: 100, Не присвоен, дом 49, корпус 1, нет, да, да, да, да, да, Имеется, Грузовых лифтов: 0, Год постройки: 1959, улица Свободы, 37.452130, 55.848513
Свяжитесь со мной на счет цены
10 дн.
T55S848513L37S452130T

На карте


Условия сделки

Источник


Старт продаж

Возможно заинтересует