Top.Mail.Ru

Флотская ул., д. 34, к. 2

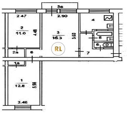
База каталог, Кол-во подъездов: 6, I-511, Москва, Головинский, Пассажирский лифт: 0, От метро: 1270, Северный, да, Наименьшее кол-во этажей: 5, Наибольшее кол-во этажей: 5, Водный стадион, Кол-во помещений: 119, Кол-во нежилых помещений: 0, Год ввода в эксплуатацию: 1967, 3-комн, Кол-во жилых помещений: 119, E, дом 34, корпус 2, нет, да, да, да, да, нет, Грузовых лифтов: 0, Год постройки: 1967, Флотская улица, 37.493263, 55.848534
Свяжитесь со мной на счет цены
10 дн.
T55S848534L37S493263T

На карте


Условия сделки

Источник


Старт продаж

Возможно заинтересует