Top.Mail.Ru

Смольная ул., д. 21, к. 1

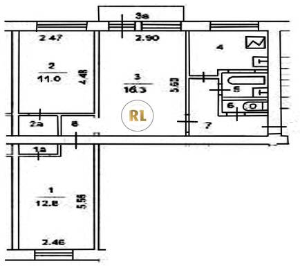
База каталог, Кол-во подъездов: 8, I-511, Москва, Головинский, Пассажирский лифт: 0, От метро: 1400, Северный, да, Наименьшее кол-во этажей: 5, Наибольшее кол-во этажей: 5, Водный стадион, Кол-во помещений: 159, Кол-во нежилых помещений: 0, Год ввода в эксплуатацию: 1964, 3-комн, Кол-во жилых помещений: 159, дом 21, корпус 1, нет, да, да, да, да, нет, Грузовых лифтов: 0, Год постройки: 1964, Смольная улица, 37.496695, 55.848544
Свяжитесь со мной на счет цены
10 дн.
T55S848544L37S496695T

На карте


Условия сделки

Источник


Старт продаж

Возможно заинтересует