Top.Mail.Ru

Сходненская ул., д. 52, к. 3

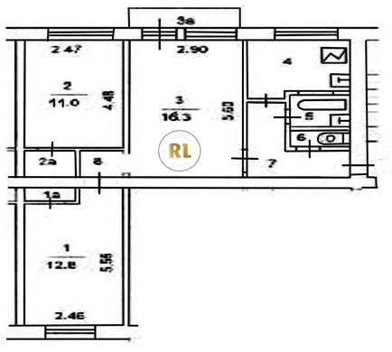
База каталог, Кол-во подъездов: 4, Отсутствует, I-511, Москва, Южное Тушино, Площадь парковки: 200, Пассажирский лифт: 0, От метро: 119, Северо-Западный, да, Наименьшее кол-во этажей: 5, Наибольшее кол-во этажей: 5, Сходненская, Кол-во помещений: 80, Кол-во нежилых помещений: 0, Год ввода в эксплуатацию: 1963, 3-комн, Кол-во жилых помещений: 80, Не присвоен, дом 52, корпус 3, да, да, да, да, да, да, Имеется, Грузовых лифтов: 0, Год постройки: 1963, Сходненская улица, 37.442266, 55.848736
Свяжитесь со мной на счет цены
10 дн.
T55S848736L37S442266T

На карте


Условия сделки

Источник


Старт продаж

Возможно заинтересует