Top.Mail.Ru

Авангардная ул., д. 20

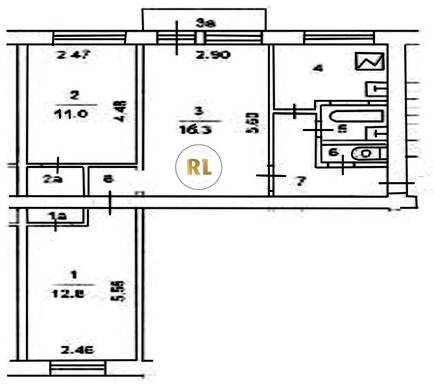
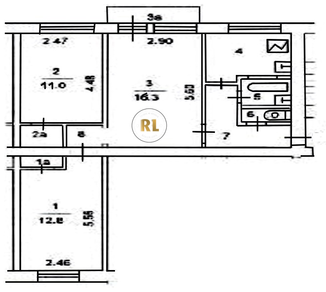
База каталог, Кол-во подъездов: 6, I-511, Москва, Головинский, Площадь парковки: 0, Пассажирский лифт: 0, От метро: 1290, Северный, нет, Наименьшее кол-во этажей: 5, Наибольшее кол-во этажей: 5, Речной вокзал, Кол-во помещений: 119, Кол-во нежилых помещений: 0, Год ввода в эксплуатацию: 1968, 3-комн, Кол-во жилых помещений: 119, С, дом 20, нет, да, да, да, да, нет, Грузовых лифтов: 0, Год постройки: 1968, Авангардная улица, 37.490506, 55.848822
Свяжитесь со мной на счет цены
10 дн.
T55S848822L37S490506T

На карте


Условия сделки

Источник


Старт продаж

Возможно заинтересует