Top.Mail.Ru

Смольная ул., д. 23, к. 2

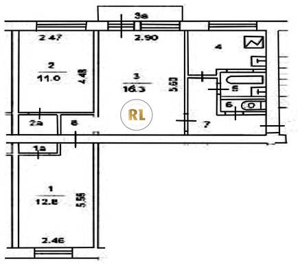
База каталог, Кол-во подъездов: 8, I-511, Москва, Головинский, Пассажирский лифт: 0, От метро: 1350, Северный, да, Наименьшее кол-во этажей: 5, Наибольшее кол-во этажей: 5, Водный стадион, Кол-во помещений: 159, Кол-во нежилых помещений: 0, Год ввода в эксплуатацию: 1966, 3-комн, Кол-во жилых помещений: 159, D, дом 23, корпус 2, нет, да, да, да, да, нет, Грузовых лифтов: 0, Год постройки: 1966, Смольная улица, 37.493892, 55.848882
Свяжитесь со мной на счет цены
10 дн.
T55S848882L37S493892T

На карте


Условия сделки

Источник


Старт продаж

Возможно заинтересует