Top.Mail.Ru

Смольная ул., д. 23, к. 1

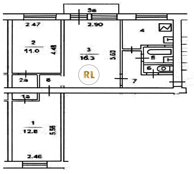
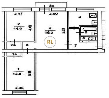
База каталог, Кол-во подъездов: 6, I-511, Москва, Головинский, Пассажирский лифт: 0, От метро: 1400, Северный, да, Наименьшее кол-во этажей: 5, Наибольшее кол-во этажей: 5, Водный стадион, Кол-во помещений: 119, Кол-во нежилых помещений: 0, Год ввода в эксплуатацию: 1965, 3-комн, Кол-во жилых помещений: 119, F, дом 23, корпус 1, нет, да, да, да, да, нет, Грузовых лифтов: 0, Год постройки: 1965, Смольная улица, 37.495078, 55.848908
Свяжитесь со мной на счет цены
10 дн.
T55S848908L37S495078T

На карте


Условия сделки

Источник


Старт продаж

Возможно заинтересует