Top.Mail.Ru

Пятницкое шоссе, д. 27, к. 1

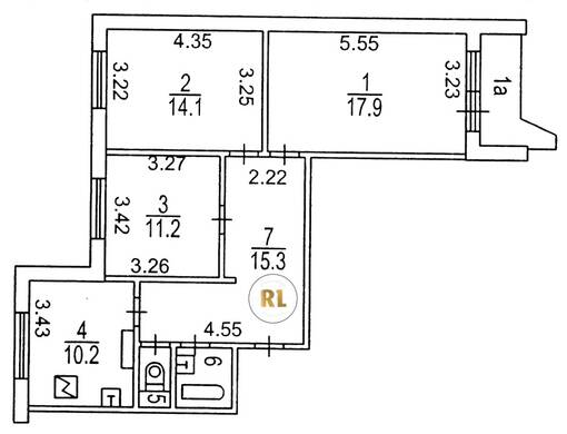
База каталог, Кол-во помещений: 585, Имеется, П-44, Москва, Митино, Площадь парковки: 0, Пассажирский лифт: 9, От метро: 310, Северо-Западный, нет, Наименьшее кол-во этажей: 1, Наибольшее кол-во этажей: 17, Митино, Кол-во подъездов: 9, Год ввода в эксплуатацию: 1992, Кол-во нежилых помещений: 0, 3-комн, Кол-во жилых помещений: 585, дом 27, корпус 1, да, да, да, да, да, да, Имеется, Грузовых лифтов: 9, Год постройки: 1992, Пятницкое шоссе, 37.362999, 55.849054
Свяжитесь со мной на счет цены
10 дн.
T55S849054L37S362999T

На карте


Условия сделки

Источник


Старт продаж

Возможно заинтересует