Top.Mail.Ru

бульвар Яна Райниса, д. 7

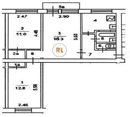
База каталог, Кол-во подъездов: 4, Имеется, I-511, Москва, Южное Тушино, Площадь парковки: 922, Пассажирский лифт: 0, От метро: 320, Северо-Западный, да, Наименьшее кол-во этажей: 5, Наибольшее кол-во этажей: 5, Сходненская, Кол-во помещений: 80, Кол-во нежилых помещений: 0, Год ввода в эксплуатацию: 1963, 3-комн, Кол-во жилых помещений: 80, Не присвоен, дом 7, да, да, да, да, да, да, Имеется, Грузовых лифтов: 0, Год постройки: 1963, бульвар Яна Райниса, 37.435897, 55.849347
Свяжитесь со мной на счет цены
10 дн.
T55S849347L37S435897T

На карте


Условия сделки

Источник


Старт продаж

Возможно заинтересует