Top.Mail.Ru

Химкинский бульвар, д. 23

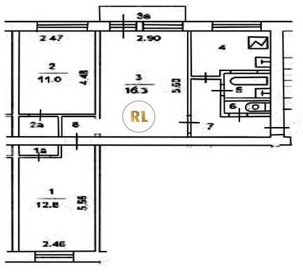
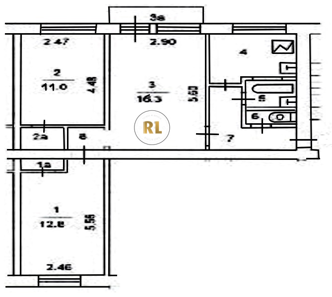
База каталог, Кол-во подъездов: 4, Отсутствует, I-511, Москва, Южное Тушино, Площадь парковки: 128, Пассажирский лифт: 0, От метро: 86, Северо-Западный, да, Наименьшее кол-во этажей: 5, Наибольшее кол-во этажей: 5, Сходненская, Кол-во помещений: 64, Кол-во нежилых помещений: 0, Год ввода в эксплуатацию: 1963, 3-комн, Кол-во жилых помещений: 64, Не присвоен, дом 23, да, да, да, да, да, да, Имеется, Грузовых лифтов: 0, Год постройки: 1963, Химкинский бульвар, 37.441619, 55.849362
Свяжитесь со мной на счет цены
10 дн.
T55S849362L37S441619T

На карте


Условия сделки

Источник


Старт продаж

Возможно заинтересует