Top.Mail.Ru

бульвар Яна Райниса, д. 14, к. 1

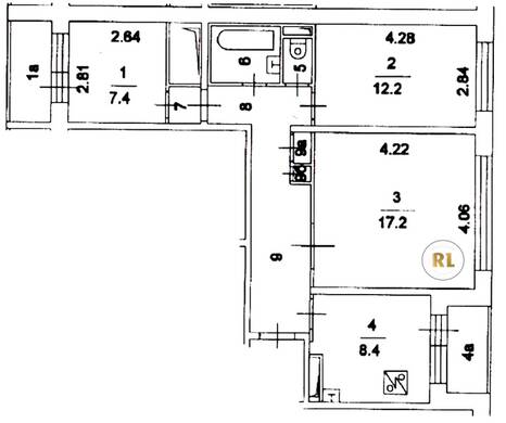
База каталог, Кол-во подъездов: 2, Имеется, П-30, Москва, Северное Тушино, Площадь парковки: 0, Пассажирский лифт: 4, От метро: 1260, Северо-Западный, нет, Наименьшее кол-во этажей: 12, Наибольшее кол-во этажей: 12, Сходненская, Кол-во помещений: 97, Кол-во нежилых помещений: 7, Год ввода в эксплуатацию: 1981, 3-комн, Кол-во жилых помещений: 90, Не присвоен, дом 14, корпус 1, нет, да, да, да, да, нет, Имеется, Грузовых лифтов: 0, Год постройки: 1981, бульвар Яна Райниса, 37.420491, 55.849378
Свяжитесь со мной на счет цены
10 дн.
T55S849378L37S420491T

На карте


Условия сделки

Источник


Старт продаж

Возможно заинтересует