Top.Mail.Ru

Митинская ул., д. 43

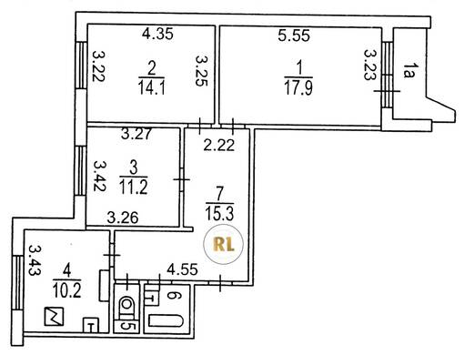
База каталог, Кол-во подъездов: 6, Имеется, П-44, Москва, Митино, Площадь парковки: 0, Пассажирский лифт: 6, От метро: 620, Северо-Западный, нет, Наименьшее кол-во этажей: 11, Наибольшее кол-во этажей: 14, Митино, Кол-во помещений: 296, Кол-во нежилых помещений: 16, Год ввода в эксплуатацию: 1993, 3-комн, Кол-во жилых помещений: 280, Не присвоен, дом 43, нет, да, да, да, да, да, Имеется, Грузовых лифтов: 6, Год постройки: 1993, Митинская улица, 37.352767, 55.849559
Свяжитесь со мной на счет цены
10 дн.
T55S849559L37S352767T

На карте


Условия сделки

Источник


Старт продаж

Возможно заинтересует