Top.Mail.Ru

Флотская ул., д. 4

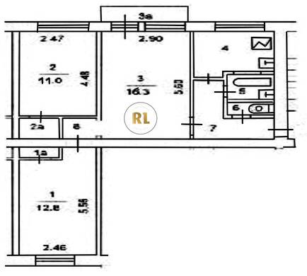
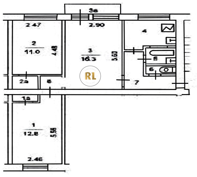
База каталог, Кол-во подъездов: 4, I-511, Москва, Головинский, Пассажирский лифт: 0, От метро: 640, Северный, да, Наименьшее кол-во этажей: 5, Наибольшее кол-во этажей: 5, Речной вокзал, Кол-во помещений: 80, Кол-во нежилых помещений: 0, Год ввода в эксплуатацию: 1965, 3-комн, Кол-во жилых помещений: 80, F, дом 4, нет, да, да, да, да, да, Грузовых лифтов: 0, Год постройки: 1965, Флотская улица, 37.477256, 55.849797
Свяжитесь со мной на счет цены
10 дн.
T55S849797L37S477256T

На карте


Условия сделки

Источник


Старт продаж

Возможно заинтересует