Top.Mail.Ru

Химкинский бульвар, д. 13

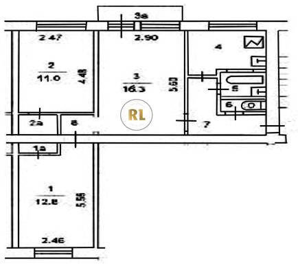
База каталог, Кол-во подъездов: 3, Отсутствует, I-511, Москва, Южное Тушино, Площадь парковки: 80, Пассажирский лифт: 0, От метро: 450, Северо-Западный, да, Наименьшее кол-во этажей: 5, Наибольшее кол-во этажей: 5, Сходненская, Кол-во помещений: 48, Кол-во нежилых помещений: 0, Год ввода в эксплуатацию: 1962, 3-комн, Кол-во жилых помещений: 48, Не присвоен, дом 13, да, да, да, да, да, да, Имеется, Грузовых лифтов: 0, Год постройки: 1962, Химкинский бульвар, 37.447611, 55.849979
Свяжитесь со мной на счет цены
10 дн.
T55S849979L37S447611T

На карте


Условия сделки

Источник


Старт продаж

Возможно заинтересует