Top.Mail.Ru

Митинская ул., д. 48

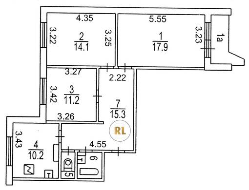
База каталог, Кол-во подъездов: 10, Имеется, П-44, Москва, Митино, Площадь парковки: 0, Пассажирский лифт: 10, От метро: 490, Северо-Западный, нет, Наименьшее кол-во этажей: 17, Наибольшее кол-во этажей: 17, Митино, Кол-во помещений: 662, Кол-во нежилых помещений: 9, Год ввода в эксплуатацию: 1992, 3-комн, Кол-во жилых помещений: 653, Не присвоен, дом 48, да, да, да, да, да, да, Имеется, Грузовых лифтов: 10, Год постройки: 1992, Митинская улица, 37.355399, 55.850110
Свяжитесь со мной на счет цены
10 дн.
T55S850110L37S355399T

На карте


Условия сделки

Источник


Старт продаж

Возможно заинтересует