Top.Mail.Ru

проезд Нансена, д. 5

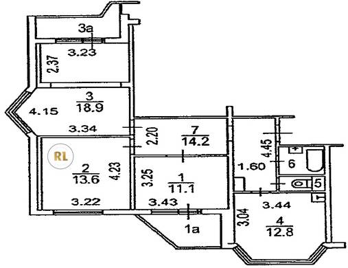
База каталог, Кол-во подъездов: 4, Имеется, П-44T, Москва, Свиблово, Площадь парковки: 0, Пассажирский лифт: 4, От метро: 560, Северо-Восточный, нет, Наименьшее кол-во этажей: 17, Наибольшее кол-во этажей: 17, Свиблово, Кол-во помещений: 273, Кол-во нежилых помещений: 10, Год ввода в эксплуатацию: 2000, 3-комн, Кол-во жилых помещений: 263, Не присвоен, дом 5, да, да, да, да, да, да, Имеется, Грузовых лифтов: 4, Год постройки: 2000, проезд Нансена, 37.651960, 55.850398
Свяжитесь со мной на счет цены
10 дн.
T55S850398L37S651960T

На карте


Условия сделки

Источник


Старт продаж

Возможно заинтересует