Top.Mail.Ru

проезд Нансена, д. 6, к. 3

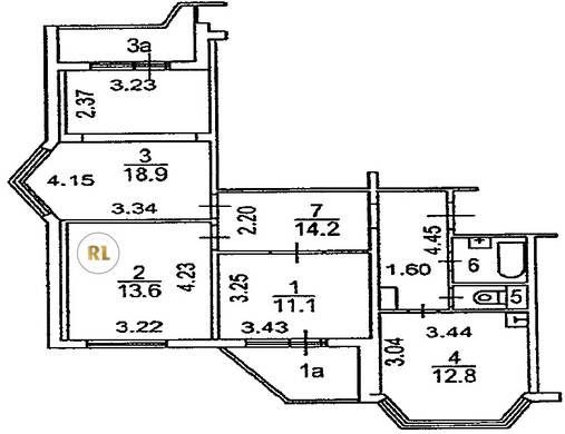
База каталог, Кол-во подъездов: 3, Отсутствует, П-44T, Москва, Свиблово, Площадь парковки: 0, Пассажирский лифт: 6, От метро: 690, Северо-Восточный, нет, Наименьшее кол-во этажей: 14, Наибольшее кол-во этажей: 14, Свиблово, Кол-во помещений: 169, Кол-во нежилых помещений: 13, Год ввода в эксплуатацию: 2004, 3-комн, Кол-во жилых помещений: 156, Не присвоен, дом 6, корпус 3, нет, да, да, да, да, да, Имеется, Грузовых лифтов: 0, Год постройки: 2004, проезд Нансена, 37.654439, 55.850535
Свяжитесь со мной на счет цены
10 дн.
T55S850535L37S654439T

На карте


Условия сделки

Источник


Старт продаж

Возможно заинтересует