Top.Mail.Ru

Митинская ул., д. 47, к. 2

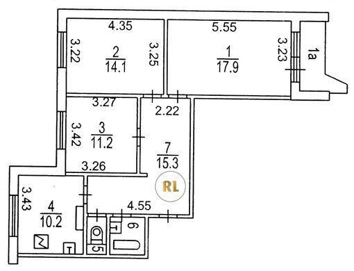
База каталог, Кол-во подъездов: 4, Имеется, П-44, Москва, Митино, Площадь парковки: 0, Пассажирский лифт: 4, От метро: 570, Северо-Западный, нет, Наименьшее кол-во этажей: 17, Наибольшее кол-во этажей: 17, Пятницкое шоссе, Кол-во помещений: 272, Кол-во нежилых помещений: 1, Год ввода в эксплуатацию: 1993, 3-комн, Кол-во жилых помещений: 271, Не присвоен, дом 47, корпус 2, да, да, да, да, да, да, Имеется, Грузовых лифтов: 4, Год постройки: 1993, Митинская улица, 37.350162, 55.851000
Свяжитесь со мной на счет цены
10 дн.
T55S851000L37S350162T

На карте


Условия сделки

Источник


Старт продаж

Возможно заинтересует