Top.Mail.Ru

Кронштадтский бульвар, д. 34, к. 2

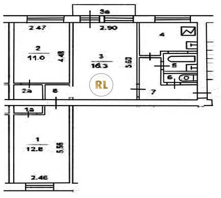
База каталог, Кол-во подъездов: 4, Отсутствует, I-511, Москва, Головинский, Площадь парковки: 0, Пассажирский лифт: 0, От метро: 1520, Северный, нет, Наименьшее кол-во этажей: 5, Наибольшее кол-во этажей: 5, Коптево, Кол-во помещений: 83, Кол-во нежилых помещений: 3, Год ввода в эксплуатацию: 1960, 3-комн, Кол-во жилых помещений: 80, F, дом 34, корпус 2, нет, да, да, да, да, нет, Отсутствует, Грузовых лифтов: 0, Год постройки: 1960, Кронштадтский бульвар, 37.516027, 55.851096
Свяжитесь со мной на счет цены
10 дн.
T55S851096L37S516027T

На карте


Условия сделки

Источник


Старт продаж

Возможно заинтересует