Top.Mail.Ru

улица Барышиха, д. 38

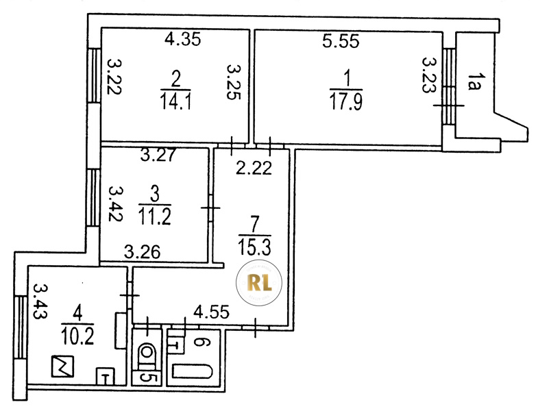
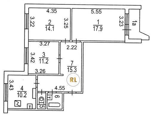
База каталог, Кол-во подъездов: 4, Имеется, П-44, Москва, Митино, Площадь парковки: 0, Пассажирский лифт: 4, От метро: 1050, Северо-Западный, нет, Наименьшее кол-во этажей: 14, Наибольшее кол-во этажей: 14, Пятницкое шоссе, Кол-во помещений: 224, Кол-во нежилых помещений: 2, Год ввода в эксплуатацию: 1993, 3-комн, Кол-во жилых помещений: 222, Не присвоен, дом 38, нет, да, да, да, да, да, Имеется, Грузовых лифтов: 4, Год постройки: 1993, улица Барышиха, 37.343353, 55.851333
Свяжитесь со мной на счет цены
10 дн.
T55S851333L37S343353T

На карте


Условия сделки

Источник


Старт продаж

Возможно заинтересует