Top.Mail.Ru

улица Седова, д. 15, к. 1

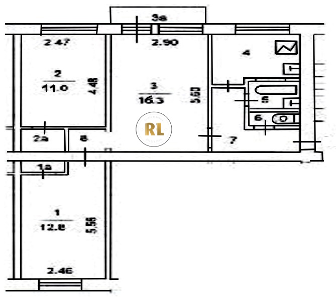
База каталог, Кол-во подъездов: 7, Отсутствует, I-511, Москва, Свиблово, Площадь парковки: 0, Пассажирский лифт: 0, От метро: 790, Северо-Восточный, нет, Наименьшее кол-во этажей: 5, Наибольшее кол-во этажей: 5, Ботанический сад, Кол-во помещений: 139, Кол-во нежилых помещений: 0, Год ввода в эксплуатацию: 1964, 3-комн, Кол-во жилых помещений: 139, Не присвоен, дом 15, корпус 1, нет, да, да, да, да, да, Отсутствует, Грузовых лифтов: 0, Год постройки: 1964, улица Седова, 37.636895, 55.851535
Свяжитесь со мной на счет цены
10 дн.
T55S851535L37S636895T

На карте


Условия сделки

Источник


Старт продаж

Возможно заинтересует