Top.Mail.Ru

Ангелов переулок, д. 7

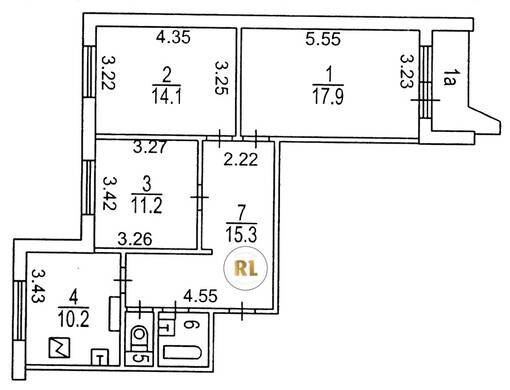
База каталог, Кол-во подъездов: 2, Имеется, П-44, Москва, Митино, Площадь парковки: 0, Пассажирский лифт: 2, От метро: 620, Северо-Западный, нет, Наименьшее кол-во этажей: 17, Наибольшее кол-во этажей: 17, Пятницкое шоссе, Кол-во помещений: 131, Кол-во нежилых помещений: 3, Год ввода в эксплуатацию: 1994, 3-комн, Кол-во жилых помещений: 128, Не присвоен, дом 7, нет, да, да, да, да, да, Имеется, Грузовых лифтов: 2, Год постройки: 1994, Ангелов переулок, 37.347853, 55.851702
Свяжитесь со мной на счет цены
10 дн.
T55S851702L37S347853T

На карте


Условия сделки

Источник


Старт продаж

Возможно заинтересует