Top.Mail.Ru

Онежская ул., д. 20

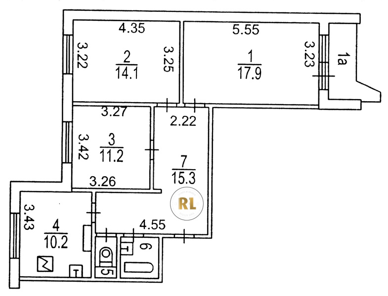
База каталог, Кол-во подъездов: 2, П-44-1/17, Москва, Головинский, Площадь парковки: 0, Пассажирский лифт: 2, От метро: 1500, Северный, нет, Наименьшее кол-во этажей: 17, Наибольшее кол-во этажей: 17, Коптево, Кол-во помещений: 129, Кол-во нежилых помещений: 1, Год ввода в эксплуатацию: 1988, 3-комн, Кол-во жилых помещений: 128, D, дом 20, нет, да, да, да, да, нет, Грузовых лифтов: 2, Год постройки: 1988, Онежская улица, 37.520114, 55.851758
Свяжитесь со мной на счет цены
10 дн.
T55S851758L37S520114T

На карте


Условия сделки

Источник


Старт продаж

Возможно заинтересует