Top.Mail.Ru

Митинская ул., д. 49

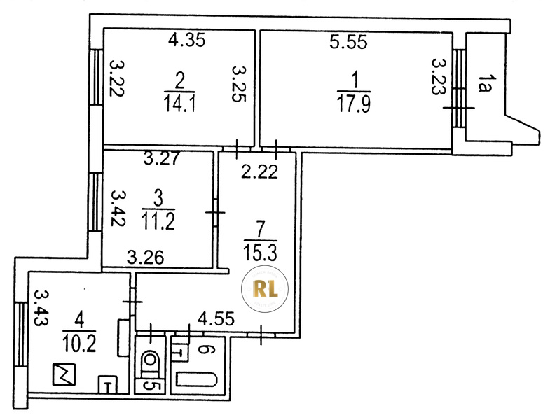
База каталог, Кол-во подъездов: 6, Отсутствует, П-44, Москва, Митино, Пассажирский лифт: 6, От метро: 380, Северо-Западный, да, Наименьшее кол-во этажей: 14, Наибольшее кол-во этажей: 14, Пятницкое шоссе, Кол-во помещений: 282, Кол-во нежилых помещений: 6, Год ввода в эксплуатацию: 1993, 3-комн, Кол-во жилых помещений: 276, Не присвоен, дом 49, да, да, да, да, да, да, Имеется, Грузовых лифтов: 6, Год постройки: 1993, Митинская улица, 37.352012, 55.851884
Свяжитесь со мной на счет цены
10 дн.
T55S851884L37S352012T

На карте


Условия сделки

Источник


Старт продаж

Возможно заинтересует