Top.Mail.Ru

Митинская ул., д. 52

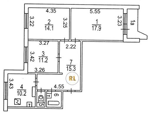
База каталог, Кол-во подъездов: 10, Имеется, П-44, Москва, Митино, Пассажирский лифт: 10, От метро: 350, Северо-Западный, да, Наименьшее кол-во этажей: 17, Наибольшее кол-во этажей: 17, Пятницкое шоссе, Кол-во помещений: 677, Кол-во нежилых помещений: 22, Год ввода в эксплуатацию: 1992, 3-комн, Кол-во жилых помещений: 655, Не присвоен, дом 52, да, да, да, да, да, да, Имеется, Грузовых лифтов: 10, Год постройки: 1992, Митинская улица, 37.354582, 55.852137
Свяжитесь со мной на счет цены
10 дн.
T55S852137L37S354582T

На карте


Условия сделки

Источник


Старт продаж

Возможно заинтересует