Top.Mail.Ru

Лихоборская набережная, д. 4, к. 2

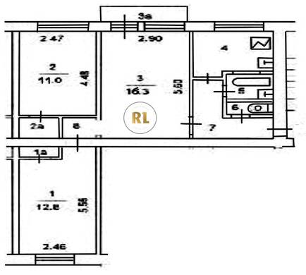
База каталог, Кол-во подъездов: 4, I-511, Москва, Головинский, Площадь парковки: 0, Пассажирский лифт: 0, От метро: 1610, Северный, нет, Наименьшее кол-во этажей: 5, Наибольшее кол-во этажей: 5, Коптево, Кол-во помещений: 63, Кол-во нежилых помещений: 3, Год ввода в эксплуатацию: 1960, 3-комн, Кол-во жилых помещений: 60, G, дом 4, корпус 2, нет, да, да, да, нет, нет, Грузовых лифтов: 0, Год постройки: 1960, Лихоборская набережная, 37.522683, 55.852167
Свяжитесь со мной на счет цены
10 дн.
T55S852167L37S522683T

На карте


Условия сделки

Источник


Старт продаж

Возможно заинтересует