Top.Mail.Ru

улица Героев Панфиловцев, д. 1/2

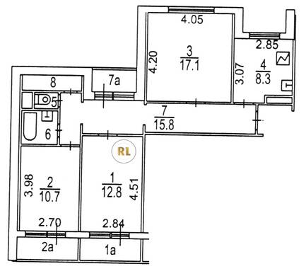
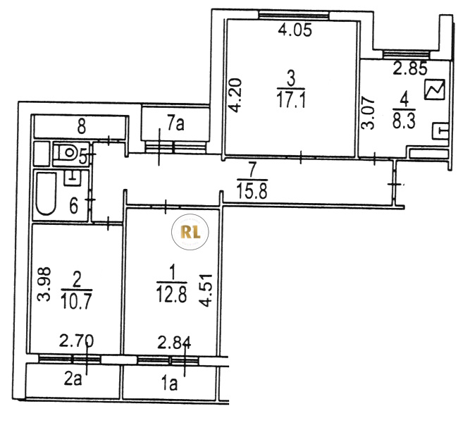
База каталог, Кол-во помещений: 93, П-55, Москва, Северное Тушино, Площадь парковки: 0, Пассажирский лифт: 4, От метро: 88, Северо-Западный, нет, Наименьшее кол-во этажей: 0, Наибольшее кол-во этажей: 10, Сходненская, Кол-во подъездов: 3, Год ввода в эксплуатацию: 2000, Кол-во нежилых помещений: 3, 3-комн, Кол-во жилых помещений: 90, дом 1/2, да, да, да, да, да, да, Грузовых лифтов: 2, Год постройки: 2000, улица Героев Панфиловцев, 37.438206, 55.852192
Свяжитесь со мной на счет цены
10 дн.
T55S852192L37S438206T

На карте


Условия сделки

Источник


Старт продаж

Возможно заинтересует