Top.Mail.Ru

проезд Нансена, д. 12, к. 2

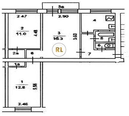
База каталог, Кол-во подъездов: 4, Отсутствует, I-511, Москва, Свиблово, Площадь парковки: 0, Пассажирский лифт: 0, От метро: 390, Северо-Восточный, нет, Наименьшее кол-во этажей: 5, Наибольшее кол-во этажей: 5, Свиблово, Кол-во помещений: 80, Кол-во нежилых помещений: 1, Год ввода в эксплуатацию: 1961, 3-комн, Кол-во жилых помещений: 79, Не присвоен, дом 12, корпус 2, да, да, да, да, да, да, Имеется, Грузовых лифтов: 0, Год постройки: 1961, проезд Нансена, 37.651753, 55.852298
Свяжитесь со мной на счет цены
10 дн.
T55S852298L37S651753T

На карте


Условия сделки

Источник


Старт продаж

Возможно заинтересует