Top.Mail.Ru

Туристская ул., д. 12, к. 1

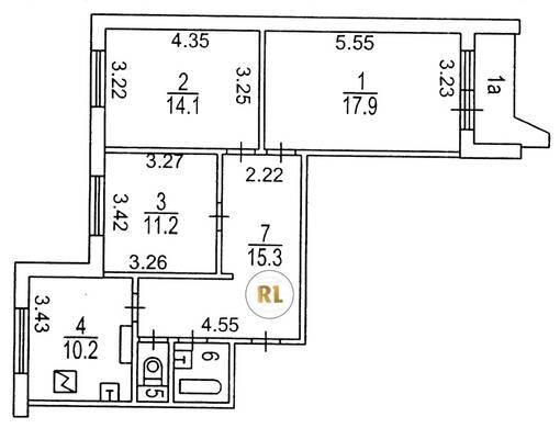
База каталог, Кол-во подъездов: 3, П-44-1/17, Москва, Северное Тушино, Площадь парковки: 0, Пассажирский лифт: 3, От метро: 1080, Северо-Западный, нет, Наименьшее кол-во этажей: 17, Наибольшее кол-во этажей: 17, Сходненская, Кол-во помещений: 209, Кол-во нежилых помещений: 14, Год ввода в эксплуатацию: 2013, 3-комн, Кол-во жилых помещений: 195, Не присвоен, дом 12, корпус 1, нет, да, да, да, да, да, Имеется, Грузовых лифтов: 3, Год постройки: 2013, Туристская улица, 37.424857, 55.852420
Свяжитесь со мной на счет цены
10 дн.
T55S852420L37S424857T

На карте


Условия сделки

Источник


Старт продаж

Возможно заинтересует