Top.Mail.Ru

Ярославское шоссе, д. 2, к. 2

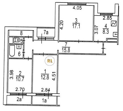
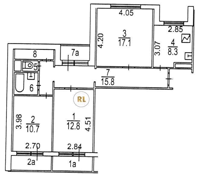
База каталог, Кол-во подъездов: 3, Имеется, П-55, Москва, Ярославский, Площадь парковки: 0, Пассажирский лифт: 6, От метро: 1870, Северо-Восточный, нет, Наименьшее кол-во этажей: 14, Наибольшее кол-во этажей: 14, Ростокино, Кол-во помещений: 137, Кол-во нежилых помещений: 7, Год ввода в эксплуатацию: 1991, 3-комн, Кол-во жилых помещений: 130, Не присвоен, дом 2, корпус 2, нет, да, да, да, нет, нет, Имеется, Грузовых лифтов: 0, Год постройки: 1991, Ярославское шоссе, 37.680320, 55.852501
Свяжитесь со мной на счет цены
10 дн.
T55S852501L37S680320T

На карте


Условия сделки

Источник


Старт продаж

Возможно заинтересует