Top.Mail.Ru

улица Седова, д. 8, к. 1

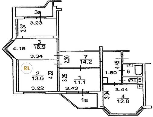
База каталог, Кол-во подъездов: 5, П-44T, Москва, Свиблово, Площадь парковки: 0, Пассажирский лифт: 10, От метро: 810, Северо-Восточный, нет, Наименьшее кол-во этажей: 17, Наибольшее кол-во этажей: 17, Ботанический сад, Кол-во помещений: 347, Кол-во нежилых помещений: 15, Год ввода в эксплуатацию: 2002, 3-комн, Кол-во жилых помещений: 332, Не присвоен, дом 8, корпус 1, нет, да, да, да, да, да, Грузовых лифтов: 0, Год постройки: 2002, улица Седова, 37.640327, 55.852592
28 023 000 Р
10 дн.
T55S852592L37S640327T
+

На карте


Условия сделки

Источник


Старт продаж

Возможно заинтересует