Top.Mail.Ru

Лихоборская набережная, д. 4, к. 1

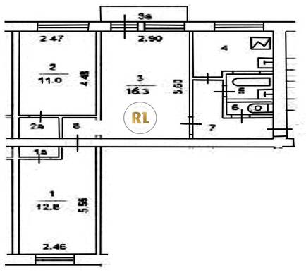
База каталог, Кол-во подъездов: 4, I-511, Москва, Головинский, Площадь парковки: 0, Пассажирский лифт: 0, От метро: 1650, Северный, нет, Наименьшее кол-во этажей: 5, Наибольшее кол-во этажей: 5, Коптево, Кол-во помещений: 60, Кол-во нежилых помещений: 0, Год ввода в эксплуатацию: 1961, 3-комн, Кол-во жилых помещений: 60, E, дом 4, корпус 1, нет, да, да, да, нет, нет, Грузовых лифтов: 0, Год постройки: 1961, Лихоборская набережная, 37.522414, 55.852773
Свяжитесь со мной на счет цены
10 дн.
T55S852773L37S522414T

На карте


Условия сделки

Источник


Старт продаж

Возможно заинтересует