Top.Mail.Ru

Снежная ул., д. 17, к. 2

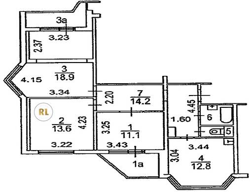
База каталог, Кол-во подъездов: 8, Отсутствует, П-44T, Москва, Свиблово, Площадь парковки: 0, Пассажирский лифт: 16, От метро: 360, Северо-Восточный, нет, Наименьшее кол-во этажей: 17, Наибольшее кол-во этажей: 17, Свиблово, Кол-во помещений: 549, Кол-во нежилых помещений: 31, Год ввода в эксплуатацию: 2004, 3-комн, Кол-во жилых помещений: 518, Не присвоен, дом 17, корпус 2, да, да, да, да, да, да, Отсутствует, Грузовых лифтов: 0, Год постройки: 2004, Снежная улица, 37.646866, 55.853223
Свяжитесь со мной на счет цены
10 дн.
T55S853223L37S646866T

На карте


Условия сделки

Источник


Старт продаж

Возможно заинтересует