Top.Mail.Ru

Алтуфьевское шоссе, д. 13, к. 1

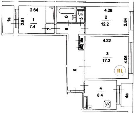
База каталог, Кол-во подъездов: 3, П-30, Москва, Отрадное, Площадь парковки: 0, Пассажирский лифт: 6, От метро: 1040, Северо-Восточный, нет, Наименьшее кол-во этажей: 12, Наибольшее кол-во этажей: 12, Владыкино, Кол-во помещений: 146, Кол-во нежилых помещений: 4, Год ввода в эксплуатацию: 1980, 3-комн, Кол-во жилых помещений: 142, Не присвоен, дом 13, корпус 1, нет, да, да, да, да, да, Грузовых лифтов: 0, Год постройки: 1980, Алтуфьевское шоссе, 37.582718, 55.853516
Свяжитесь со мной на счет цены
10 дн.
T55S853516L37S582718T

На карте


Условия сделки

Источник


Старт продаж

Возможно заинтересует