Top.Mail.Ru

Онежская ул., д. 23

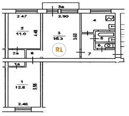
База каталог, Кол-во подъездов: 4, I-511, Москва, Головинский, Пассажирский лифт: 0, От метро: 1850, Северный, да, Наименьшее кол-во этажей: 5, Наибольшее кол-во этажей: 5, Коптево, Кол-во помещений: 80, Кол-во нежилых помещений: 0, Год ввода в эксплуатацию: 1966, 3-комн, Кол-во жилых помещений: 80, дом 23, нет, да, да, да, нет, нет, Грузовых лифтов: 0, Год постройки: 1966, Онежская улица, 37.515209, 55.853976
Свяжитесь со мной на счет цены
10 дн.
T55S853976L37S515209T

На карте


Условия сделки

Источник


Старт продаж

Возможно заинтересует