Top.Mail.Ru

Митинская ул., д. 55

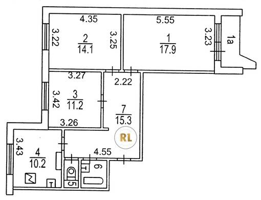
База каталог, Кол-во помещений: 197, П-44, Москва, Митино, Площадь парковки: 0, Пассажирский лифт: 3, От метро: 111, Северо-Западный, нет, Наименьшее кол-во этажей: 2, Наибольшее кол-во этажей: 17, Пятницкое шоссе, Кол-во подъездов: 3, Год ввода в эксплуатацию: 1992, Кол-во нежилых помещений: 3, 3-комн, Кол-во жилых помещений: 194, дом 55, да, да, да, да, да, да, Грузовых лифтов: 3, Год постройки: 1992, Митинская улица, 37.352039, 55.854203
Свяжитесь со мной на счет цены
10 дн.
T55S854203L37S352039T

На карте


Условия сделки

Источник


Старт продаж

Возможно заинтересует