Top.Mail.Ru

улица Ляпидевского, д. 2

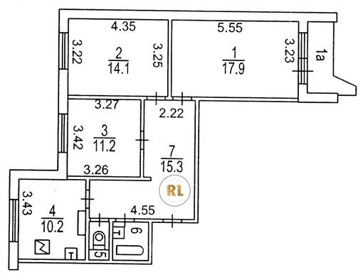
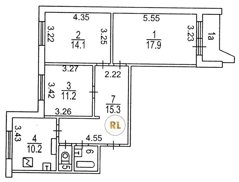
База каталог, Кол-во подъездов: 3, Отсутствует, П-44, Москва, Ховрино, Площадь парковки: 0, Пассажирский лифт: 3, От метро: 1770, Северный, нет, Наименьшее кол-во этажей: 17, Наибольшее кол-во этажей: 17, Речной вокзал, Кол-во помещений: 171, Кол-во нежилых помещений: 3, Год ввода в эксплуатацию: 1998, 3-комн, Кол-во жилых помещений: 168, D, дом 2, нет, да, да, да, нет, нет, Имеется, Грузовых лифтов: 3, Год постройки: 1998, улица Ляпидевского, 37.499031, 55.854310
Свяжитесь со мной на счет цены
10 дн.
T55S854310L37S499031T

На карте


Условия сделки

Источник


Старт продаж

Возможно заинтересует