Top.Mail.Ru

Ярославское шоссе, д. 26А

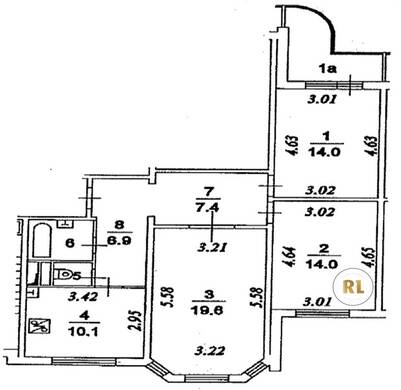
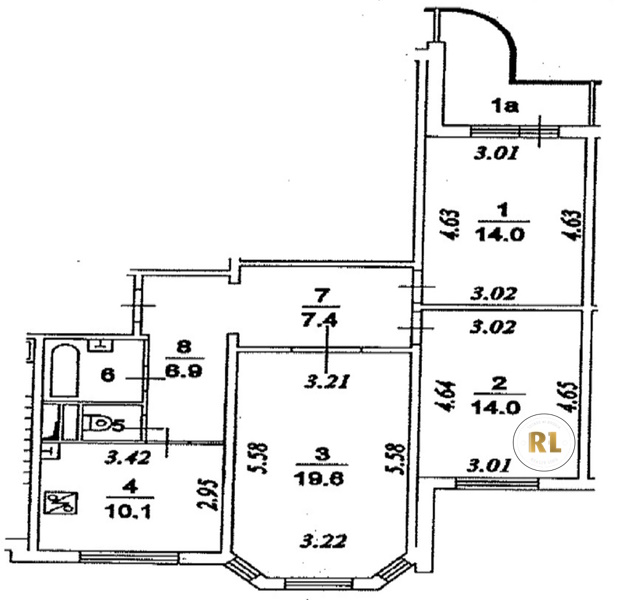
База каталог, Кол-во помещений: 140, Отсутствует, П-ЗМ-1/14, Москва, Ярославский, Площадь парковки: 0, Пассажирский лифт: 2, От метро: 2990, Северо-Восточный, нет, Наименьшее кол-во этажей: 17, Наибольшее кол-во этажей: 17, Бабушкинская, Кол-во подъездов: 2, Год ввода в эксплуатацию: 2005, Кол-во нежилых помещений: 4, 3-комн, Кол-во жилых помещений: 136, дом 26А, нет, да, нет, нет, нет, нет, Отсутствует, Грузовых лифтов: 2, Год постройки: 2004, Ярославское шоссе, 37.694127, 55.854350
Свяжитесь со мной на счет цены
10 дн.
T55S854350L37S694127T

На карте


Условия сделки

Источник


Старт продаж

Возможно заинтересует