Top.Mail.Ru

улица Барышиха, д. 42

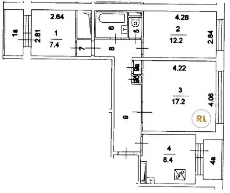
База каталог, Кол-во подъездов: 5, Отсутствует, П-30, Москва, Митино, Площадь парковки: 0, Пассажирский лифт: 10, От метро: 700, Северо-Западный, нет, Наименьшее кол-во этажей: 14, Наибольшее кол-во этажей: 14, Пятницкое шоссе, Кол-во помещений: 280, Кол-во нежилых помещений: 4, Год ввода в эксплуатацию: 1994, 3-комн, Кол-во жилых помещений: 276, Не присвоен, дом 42, нет, да, да, да, да, да, Имеется, Грузовых лифтов: 0, Год постройки: 1994, улица Барышиха, 37.343308, 55.854673
Свяжитесь со мной на счет цены
10 дн.
T55S854673L37S343308T

На карте


Условия сделки

Источник


Старт продаж

Возможно заинтересует