Top.Mail.Ru

улица Ляпидевского, д. 2, к. 1

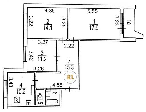
База каталог, Кол-во подъездов: 3, П-44, Москва, Ховрино, Пассажирский лифт: 3, От метро: 1840, Северный, да, Наименьшее кол-во этажей: 14, Наибольшее кол-во этажей: 14, Речной вокзал, Кол-во помещений: 151, Кол-во нежилых помещений: 1, Год ввода в эксплуатацию: 1998, 3-комн, Кол-во жилых помещений: 150, E, дом 2, корпус 1, нет, да, да, да, нет, нет, Грузовых лифтов: 3, Год постройки: 1998, улица Ляпидевского, 37.499633, 55.854906
Свяжитесь со мной на счет цены
10 дн.
T55S854906L37S499633T

На карте


Условия сделки

Источник


Старт продаж

Возможно заинтересует