Top.Mail.Ru

Снежная ул., д. 25

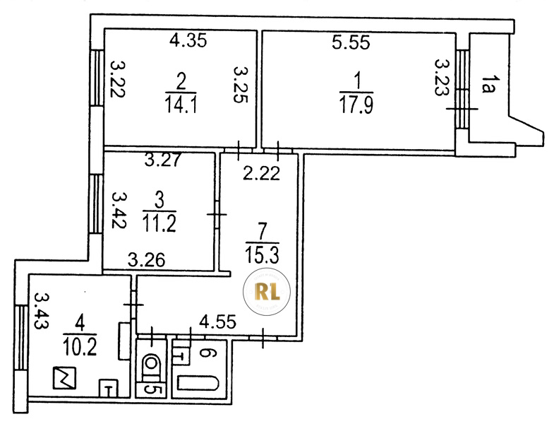
База каталог, Кол-во подъездов: 2, Отсутствует, П-44, Москва, Свиблово, Площадь парковки: 0, Пассажирский лифт: 4, От метро: 176, Северо-Восточный, нет, Наименьшее кол-во этажей: 17, Наибольшее кол-во этажей: 17, Свиблово, Кол-во помещений: 133, Кол-во нежилых помещений: 5, Год ввода в эксплуатацию: 1987, 3-комн, Кол-во жилых помещений: 128, Не присвоен, дом 25, да, да, да, да, да, да, Отсутствует, Грузовых лифтов: 0, Год постройки: 1987, Снежная улица, 37.652014, 55.855527
Свяжитесь со мной на счет цены
10 дн.
T55S855527L37S652014T

На карте


Условия сделки

Источник


Старт продаж

Возможно заинтересует