Top.Mail.Ru

проезд Русанова, д. 25, к. 1

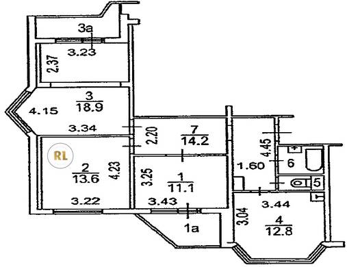
База каталог, Кол-во подъездов: 6, Отсутствует, П-44T, Москва, Свиблово, Площадь парковки: 0, Пассажирский лифт: 12, От метро: 690, Северо-Восточный, нет, Наименьшее кол-во этажей: 17, Наибольшее кол-во этажей: 17, Свиблово, Кол-во помещений: 400, Кол-во нежилых помещений: 15, Год ввода в эксплуатацию: 2014, 3-комн, Кол-во жилых помещений: 385, Не присвоен, дом 25, корпус 1, нет, да, да, да, да, да, Имеется, Грузовых лифтов: 0, Год постройки: 2014, проезд Русанова, 37.641225, 55.856356
Свяжитесь со мной на счет цены
10 дн.
T55S856356L37S641225T

На карте


Условия сделки

Источник


Старт продаж

Возможно заинтересует