Top.Mail.Ru

Пятницкое шоссе, д. 42, к. 1

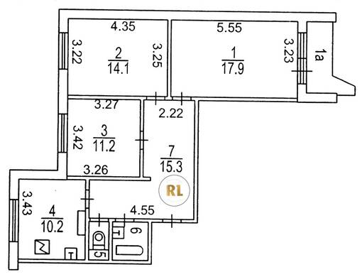
База каталог, Кол-во подъездов: 4, Имеется, П-44, Москва, Митино, Площадь парковки: 0, Пассажирский лифт: 4, От метро: 420, Северо-Западный, нет, Наименьшее кол-во этажей: 14, Наибольшее кол-во этажей: 17, Пятницкое шоссе, Кол-во помещений: 246, Кол-во нежилых помещений: 1, Год ввода в эксплуатацию: 1996, 3-комн, Кол-во жилых помещений: 245, Не присвоен, дом 42, корпус 1, да, да, да, да, да, да, Имеется, Грузовых лифтов: 4, Год постройки: 1996, Пятницкое шоссе, 37.359918, 55.856492
Свяжитесь со мной на счет цены
10 дн.
T55S856492L37S359918T

На карте


Условия сделки

Источник


Старт продаж

Возможно заинтересует